Carla Mittersteig

zurück zu den Projekten

Carla Mittersteig – Transformation eines Second-Hand-Geschäfts zum Zentrum für Nachhaltigkeit und Begegnung

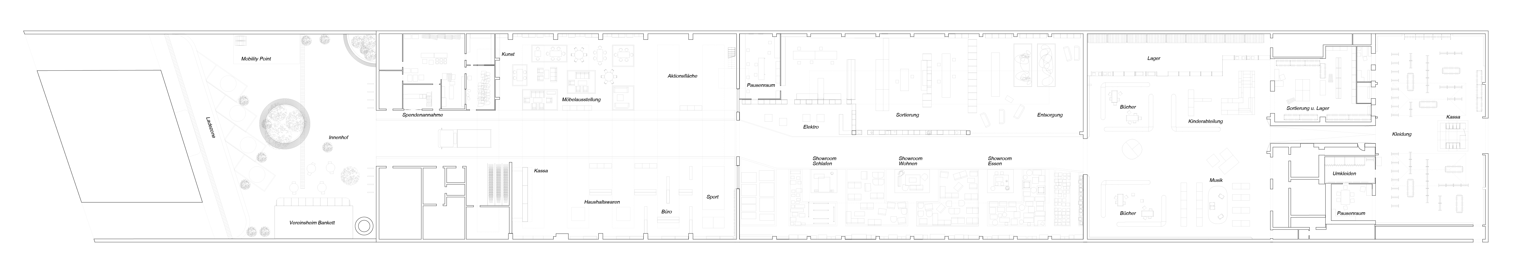
Zusammen mit dem bankett.kollektiv und dem design.build.studio haben wir Wiens größtes innerstädtisches Second-Hand-Geschäft, die Carla Mittersteig, in einen lebendigen Ort der Nachhaltigkeit und Gemeinschaft verwandelt.

Über ein Jahr lang begleiteten wir das Projekt mit einem ganzheitlichen Ansatz und arbeiteten intensiv mit den Mitarbeiter*innen und Nutzer*innen der Carla zusammen, um eine funktionale, einladende und zukunftsfähige Neugestaltung zu entwickeln.

Das Ergebnis ist eine neue Struktur und Atmosphäre: Die Textilhalle wurde neu organisiert, maßgeschneiderte Kassen- und Regalsysteme optimieren die Abläufe, und ein begrüntes Hofareal schafft zusätzlichen Raum für Begegnung. Ein besonderes Highlight ist der umgestaltete Pavillon, der während der Bauphase unter der Leitung des bankett.kollektivs als Begegnungsort diente und nun von neuen Mieter*innen als Café und Ausstellungsort weitergeführt wird.
Projektstandort:
Mittersteig 10, 1050 Wien
Projektbeteiligte:
design.build.studio, bankett.kollektiv, [viza‘vi:]
Jahr:
2022-2023‍
Nutzung:
Second-Hand-Geschäft; Café; Ausstellung
Café Pavillion im Innenhof
Café Pavillion im Innenhof

Publikationen und Links